Voici quelques données du bati et des superficies des pièces ainsi que le plan de l'habitation. Par la même occasion si vous avez l'idée des emplacements.. je suis à votre écoute..
ZONE 1 Maison individuelle 100m 2 département 30 au soleil!!!!!
SHON 102.31
Bbio 45.800 / Bbio max 46.400 : Gain en % 1.29
Parois :
Mur extérieur 0.237w/m2.°C Agglo creux 20cm / isolant 12cm plâtre à parement de carton 1.2cm
Mur sur Garage 0.217 Agglo creux 20cm / KNAUF XTHERM ultra 30 mur 12cm plâtre à parement de carton 1.3cm
Plancher bas 0.230 KNAUF THERM 14cm
Plafond sur ossature métallique 0.121 Laine minérale soufflée KNAUF THERMO 046 : 37cm / Plâtre Par. carton 1.3cm
Fenetres et portes vitrées en gros PVC (Uf=1.2) Argon(E=0.03) Vitre Double +15mm
Fermeture volet roulants PVC (e. inf.ou égal à 12mm)
Surface totale des baies : 20.095 m2 ratio: 0.201
Déperditions moyennes 0.303W/m2.°C
Ratio moyen ponts thermiques 0.083
Besoins annuels en chaud : 17,900 kw
détail : Janv :5.4 Fev :3.8 Mar: 1.5 Av/MAI/Ju/JUI/AOU/SEP/OCT : 0 Nov :2.4 Déc : 4.7
Besoins en éclairage 2,000 kw
détail : Janv / Fev / Mar /Av : 0.2 MAI/Ju/JUI/AOU : 0.1 /SEP/OCT /Nov / Déc : 0.2
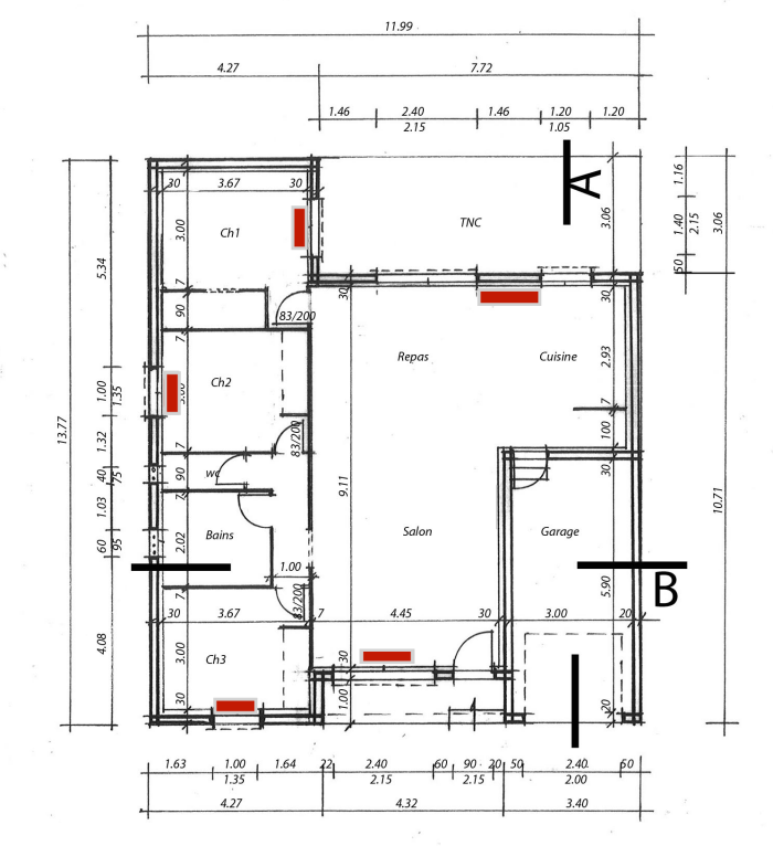
Pièces:
La maison est de plain pied 100m2
- Hall, séjour, salon, cuisine 53.28m2
- dégagement ouvert sur salon pour accès aux chambres et SDB 3.36m2
- 1e Chambre 14.31 m2
- 2e chambre 11m2
- 3e chambre 11m2
- SDB 5.25m2
- WC 1.8m2
Si vous pouvez m'aider!!!!



